We gebruiken cookies om de website naar behoren te laten werken, om functies voor social media te bieden en om onze website te analyseren. Op onze website kun je ook ons privacybeleid vinden.

Veestraat 14, 2-onder-1-kapwoning in Made - Biemans Made Makelaardij

Veestraat 14, Made

Omschrijving

ALGEMEEN:
Deze goed onderhouden 2 onder 1 kapwoning met oprit en garage is centraal in Made gelegen, nabij de voorzieningen van de plaats. De woning is aan de achterzijde uitgebouwd en biedt verrassend veel leefruimte. Op diverse punten is de woning gemoderniseerd, waaronder de moderne keuken uit 2021. Dankzij een volledig isolatiepakket (dak-, spouwmuur-, vloer- en isolatieglas), 10 zonnepanelen en vloerverwarming op de begane grond is de woning energiezuinig en comfortabel.
De woning beschikt over een royale L-vormige woonkamer met aanbouw, vier slaapkamers verdeeld over twee verdiepingen en een fraai aangelegde tuin met veranda op het zuidoosten.

INDELING:
BEGANE GROND:
Zij-entree/hal met uitgebreide meterkast en trapopgang.
Royale, uitgebouwde L-vorm woonkamer met leisteen vloer voorzien van vloerverwarming, spachtelputz wanden, spanplafond en airconditioning.

Semi-open keuken (2021) aan de straatzijde met moderne keukeninrichting voorzien van composiet aanrechtblad, spoelbak, 5-pits inductiekookplaat, afzuigkap, combi-oven met magnetronfunctie, koel-vriescombinatie, vaatwasser en Quooker.

Moderne toiletgelegenheid voorzien van wandcloset en mechanische ventilatie.
Aansluiting ten behoeve van de wasmachine en droger.

1e VERDIEPING:
Overloop met vaste kast.

Drie slaapkamers, afgewerkt met laminaatvloer, sauswerk wanden en spackwerk plafond.

Zeer nette badkamer voorzien van badmeubel met dubbele vaste wastafel, wandcloset, inloopdouche en massagebad.

2e VERDIEPING:
Via vaste trap bereikbare verdieping met voorzolder, opstelplaats van de cv-combiketel (2023) en ventilatiebox.

Zolderkamer met dakkapel, laminaatvloer en stucwerkwanden.

TUIN:
De fraai aangelegde achtertuin is gunstig gelegen op het zuidoosten en beschikt over een vijverpartij en een gezellige veranda.
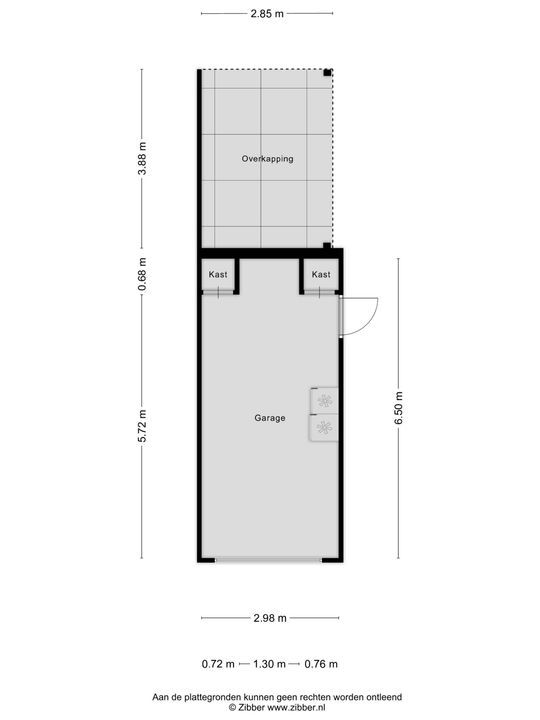
Daarnaast is er een garage en een oprit aanwezig naast de woning.

Kenmerken

Overdracht

Status
Beschikbaar
Prijs
€ 568.000 k.k.
Oplevering
In overleg

Bouw

Soort woonhuis
Eengezinswoning, 2-onder-1-kapwoning
Soort bouw
Bestaande bouw
Bouwjaar
1984
Onderhoud binnen
Goed
Onderhoud buiten
Goed

Oppervlakten en inhoud

Woonoppervlakte
130m²
Perceeloppervlakte
223m²
Inhoud
460m³

Indeling

Aantal kamers
5
Aantal slaapkamers
4
Aantal badkamers
1
Aantal verdiepingen
3
Voorzieningen
Airconditioning, Dakraam, Mechanische ventilatie, Rolluiken, Zonnepanelen

Energie

Energielabel
B
Isolatie
Dakisolatie, Dubbel glas, Muurisolatie, Vloerisolatie
Warm water
C.V.-ketel
Verwarming
C.V.-ketel
Ketel
(2023, Combi-ketel, Eigendom)

Buitenruimte

Ligging
Aan rustige weg, In woonwijk
Tuin
Achtertuin, Voortuin
Achtertuin
Zuidoost, 88m², 700×1250cm

Garage

Soort garage
Vrijstaand steen
Capaciteit
1
Voorzieningen
Voorzien van elektra

Locatie

[ { "address": "Veestraat 14", "zipCode": "4921 AV", "city": "Made", "lat": 51.6806446, "lng": 4.7989872, "heading": 0, "pitch": 0 } ]
[{"featureType":"water","elementType":"geometry","stylers":[{"color":"#e9e9e9"},{"lightness":17}]},{"featureType":"landscape","elementType":"geometry","stylers":[{"color":"#f5f5f5"},{"lightness":20}]},{"featureType":"road.highway","elementType":"geometry.fill","stylers":[{"color":"#ffffff"},{"lightness":17}]},{"featureType":"road.highway","elementType":"geometry.stroke","stylers":[{"color":"#ffffff"},{"lightness":29},{"weight":0.2}]},{"featureType":"road.arterial","elementType":"geometry","stylers":[{"color":"#ffffff"},{"lightness":18}]},{"featureType":"road.local","elementType":"geometry","stylers":[{"color":"#ffffff"},{"lightness":16}]},{"featureType":"poi","elementType":"geometry","stylers":[{"color":"#f5f5f5"},{"lightness":21}]},{"featureType":"poi.park","elementType":"geometry","stylers":[{"color":"#dedede"},{"lightness":21}]},{"elementType":"labels.text.stroke","stylers":[{"visibility":"on"},{"color":"#ffffff"},{"lightness":16}]},{"elementType":"labels.text.fill","stylers":[{"saturation":36},{"color":"#333333"},{"lightness":40}]},{"elementType":"labels.icon","stylers":[{"visibility":"off"}]},{"featureType":"transit","elementType":"geometry","stylers":[{"color":"#f2f2f2"},{"lightness":19}]},{"featureType":"administrative","elementType":"geometry.fill","stylers":[{"color":"#fefefe"},{"lightness":20}]},{"featureType":"administrative","elementType":"geometry.stroke","stylers":[{"color":"#fefefe"},{"lightness":17},{"weight":1.2}]}]

Plattegronden

Veestraat 14 Made

Contact opnemen
Interesse in deze woning? Vul onderstaande formulier in of bel 0162 - 67 24 24

Uw bericht is naar ons verzonden. Wij nemen zo snel mogelijk contact met u op.

Sorry, we kunnen helaas niet met zekerheid vaststellen of u een mens of een geautomatiseerde bot/spammer bent. Hierdoor kunnen we het formulier dat u heeft ingevuld niet verzenden. Probeer het opnieuw of neem direct contact op met de makelaar via e-mail.

Er is iets mis gegaan met het versturen van het formulier.
Controleer of u alle velden (goed) heeft ingevoerd en probeer het nog een keer.

recaptcha
reCAPTCHA
PrivacyTerms
van

Goedenavond 👋

Benieuwd naar de waarde van uw huis?

U weet het al binnen 1 minuut. Laten we beginnen!

Wat is de reden van uw aanvraag?
Ik wil graag...

Er zijn meerdere antwoorden mogelijk.

Wanneer wilt u verhuizen?

We zijn er bijna 🎉

Om het rapport op te maken hebben we een aantal gegevens nodig

recaptcha
reCAPTCHA
PrivacyTerms

Uw woningwaarde wordt berekend... 🚀

loading

Bedankt %name%! De woningwaarde van %address% is berekend 🥳

Check uw mail voor het rapport!

success
Wat is mijn huis waard?
Whatsapp Icon
Snel antwoord op je vraag?