We gebruiken cookies om de website naar behoren te laten werken, om functies voor social media te bieden en om onze website te analyseren. Op onze website kun je ook ons privacybeleid vinden.

Van Duivenvoordestraat 25, 2-onder-1-kapwoning in Lage Zwaluwe - Biemans Made Makelaardij

Van Duivenvoordestraat 25, Lage Zwaluwe

Omschrijving

ALGEMEEN:
Deze uitstekend onderhouden 2 onder 1 kapwoning met oprit, carport en garage is gelegen op een fijne locatie in Lage Zwaluwe. Tegenover de woning bevindt zich de voetbalvereniging, op korte afstand vinden we “Nationaal Park De Biesbosch”. Ook de basisschool en de supermarkt liggen op loopafstand. Dankzij de prima ontsluiting richting Dordrecht – Rotterdam en Breda woon je hier rustig, maar met steden en voorzieningen snel binnen bereik. Door de jaren heen is de woning fraai gemoderniseerd waarbij de keuken vernieuwd is in 2008, de luxe badkamer is van 2024.
De woning is goed geïsoleerd (dak-, spouwmuur- en isolatieglas), voorzien van kunststof kozijnen met rolluiken, 12 zonnepanelen en airconditioning. Daarmee is het wooncomfort uitstekend op orde.

INDELING:
BEGANE GROND:
Entree met trapopgang, vernieuwde meterkast met glasvezelaansluiting, toiletruimte en toegang tot de woonkamer.

De woonkamer is afgewerkt met een tegelvloer met vloerverwarming, spachtelputz wanden en een spackwerk plafond. De woonkamer is voorzien van openslaande tuindeuren en airconditioning.

De semi-open keuken (2008) in U-opstelling is voorzien van een granieten aanrechtblad, grillplaat, 4-pits gasfornuis, afzuigkap, combi-oven, koelkast, vaatwasser, spoelbak en inbouwspots. Daarnaast zijn er al voorbereidingen getroffen voor elektrisch koken.

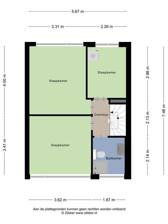
1e VERDIEPING:
Overloop met toegang tot drie slaapkamers met een laminaatvloer en structuurverfwanden. Een van de slaapkamers is voorzien van airconditioning.

De luxe badkamer (2024) is modern uitgevoerd met inloopdouche, wandcloset, badmeubel met vaste wastafel, vloerverwarming, designradiator en mechanische ventilatie.

2e VERDIEPING:
Via vaste trap bereikbare zolderverdieping. Voorzolder met opstelplaats van de cv-combiketel (2015).

Ruime zolderkamer met dakkapel en vaste kast, ideaal als extra slaapkamer of werkruimte. Deze zolderkamer is afgewerkt met een laminaatvloer.

TUIN:
De woning beschikt over een eigen oprit met carport, een geïsoleerde garage met wasmachineaansluiting en elektrische sectionaaldeur.

De achtertuin is gelegen op het noordoosten en verzorgd aangelegd, een fijne plek om in alle rust te genieten.

Kenmerken

Overdracht

Status
Beschikbaar
Prijs
€ 460.000 k.k.
Oplevering
In overleg

Bouw

Soort woonhuis
Eengezinswoning, 2-onder-1-kapwoning
Soort bouw
Bestaande bouw
Bouwjaar
1970
Onderhoud binnen
Goed
Onderhoud buiten
Goed

Oppervlakten en inhoud

Woonoppervlakte
109m²
Perceeloppervlakte
308m²
Overig oppervlakte
20m²
Inhoud
457m³

Indeling

Aantal kamers
5
Aantal slaapkamers
4
Aantal badkamers
1
Aantal verdiepingen
3
Voorzieningen
Airconditioning, Glasvezel kabel, Mechanische ventilatie, Rolluiken, Zonnepanelen

Energie

Energielabel
B
Isolatie
Dakisolatie, Muurisolatie
Warm water
C.V.-ketel
Verwarming
C.V.-ketel
Ketel
(2015, Combi-ketel, Eigendom)

Buitenruimte

Ligging
Aan rustige weg, In woonwijk, Vrij uitzicht
Tuin
Achtertuin, Voortuin
Achtertuin
Noordwest, 131m², 1250×1050cm
Schuur
Vrijstaand hout
Faciliteiten schuur
Voorzien van elektra

Garage

Soort garage
Aangebouwd steen
Capaciteit
1
Voorzieningen
Voorzien van elektra, Voorzien van verwarming, Voorzien van water

Locatie

[ { "address": "Van Duivenvoordestraat 25", "zipCode": "4926 BT", "city": "Lage Zwaluwe", "lat": 51.7082357, "lng": 4.700164, "heading": 0, "pitch": 0 } ]
[{"featureType":"water","elementType":"geometry","stylers":[{"color":"#e9e9e9"},{"lightness":17}]},{"featureType":"landscape","elementType":"geometry","stylers":[{"color":"#f5f5f5"},{"lightness":20}]},{"featureType":"road.highway","elementType":"geometry.fill","stylers":[{"color":"#ffffff"},{"lightness":17}]},{"featureType":"road.highway","elementType":"geometry.stroke","stylers":[{"color":"#ffffff"},{"lightness":29},{"weight":0.2}]},{"featureType":"road.arterial","elementType":"geometry","stylers":[{"color":"#ffffff"},{"lightness":18}]},{"featureType":"road.local","elementType":"geometry","stylers":[{"color":"#ffffff"},{"lightness":16}]},{"featureType":"poi","elementType":"geometry","stylers":[{"color":"#f5f5f5"},{"lightness":21}]},{"featureType":"poi.park","elementType":"geometry","stylers":[{"color":"#dedede"},{"lightness":21}]},{"elementType":"labels.text.stroke","stylers":[{"visibility":"on"},{"color":"#ffffff"},{"lightness":16}]},{"elementType":"labels.text.fill","stylers":[{"saturation":36},{"color":"#333333"},{"lightness":40}]},{"elementType":"labels.icon","stylers":[{"visibility":"off"}]},{"featureType":"transit","elementType":"geometry","stylers":[{"color":"#f2f2f2"},{"lightness":19}]},{"featureType":"administrative","elementType":"geometry.fill","stylers":[{"color":"#fefefe"},{"lightness":20}]},{"featureType":"administrative","elementType":"geometry.stroke","stylers":[{"color":"#fefefe"},{"lightness":17},{"weight":1.2}]}]

Plattegronden

Van Duivenvoordestraat 25 Lage Zwaluwe

Contact opnemen
Interesse in deze woning? Vul onderstaande formulier in of bel 0162 - 67 24 24

Uw bericht is naar ons verzonden. Wij nemen zo snel mogelijk contact met u op.

Sorry, we kunnen helaas niet met zekerheid vaststellen of u een mens of een geautomatiseerde bot/spammer bent. Hierdoor kunnen we het formulier dat u heeft ingevuld niet verzenden. Probeer het opnieuw of neem direct contact op met de makelaar via e-mail.

Er is iets mis gegaan met het versturen van het formulier.
Controleer of u alle velden (goed) heeft ingevoerd en probeer het nog een keer.

recaptcha
reCAPTCHA
PrivacyTerms
van

Goedenavond 👋

Benieuwd naar de waarde van uw huis?

U weet het al binnen 1 minuut. Laten we beginnen!

Wat is de reden van uw aanvraag?
Ik wil graag...

Er zijn meerdere antwoorden mogelijk.

Wanneer wilt u verhuizen?

We zijn er bijna 🎉

Om het rapport op te maken hebben we een aantal gegevens nodig

recaptcha
reCAPTCHA
PrivacyTerms

Uw woningwaarde wordt berekend... 🚀

loading

Bedankt %name%! De woningwaarde van %address% is berekend 🥳

Check uw mail voor het rapport!

success
Wat is mijn huis waard?
Whatsapp Icon
Snel antwoord op je vraag?