We gebruiken cookies om de website naar behoren te laten werken, om functies voor social media te bieden en om onze website te analyseren. Op onze website kun je ook ons privacybeleid vinden.

Rijtselaan 6, Tussenwoning in Raamsdonksveer - Biemans Made Makelaardij

Rijtselaan 6, Raamsdonksveer

Omschrijving

ALGEMEEN:
Op een centrale locatie in Raamsdonksveer vinden we deze tussenwoning met diepe achtertuin op het noordwesten, grote schuur en een separate garagebox op loopafstand. De woning is gunstig gelegen ten opzichte van winkels, scholen en voorzieningen. Ook de uitvalswegen richting onder meer Breda, Oosterhout en Gorinchem zijn snel en eenvoudig bereikbaar hetgeen de ligging extra aantrekkelijk maakt.
De woning is degelijk gebouwd en biedt volop mogelijkheden voor wie de handen uit de mouwen wilt steken. Met modernisering dient rekening gehouden te worden, maar juist dat biedt kansen om de woning geheel naar eigen smaak en wensen in te richten.

INDELING:
BEGANE GROND:
Hal met meterkast, trapopgang, trapkast en toilet met fonteintje.

De doorzonkamer heeft veel lichtinval en is afgewerkt met granolwanden, houten schroten plafond en deels stucwerk.

De dichte keuken is eenvoudig uitgevoerd en voorzien van een RVS aanrechtblad en wasmachineaansluiting. Vanuit de keuken toegang tot de tuin.

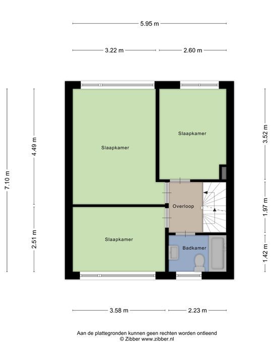
1e VERDIEPING:
Overloop met toegang tot drie slaapkamers. De verdieping is voorzien van een betonvloer met vloerbedekking, wanden met behang en een gipsplaten plafond.

De badkamer beschikt over een ligbad, toilet en vaste wastafel.

2e VERDIEPING:
Via vaste trap bereikbare zolderverdieping met balkenvloer. Voorzolder met opstelplaats van de cv-combiketel (Remeha Calenta, 2016).

Zolderkamer met dakraam en vloerbedekking.

TUIN:
De diepe achtertuin is gelegen op het noordwesten en biedt volop ruimte. Achterin staat een grote schuur.

Daarnaast beschikt de woning over een losse, separate garagebox op loopafstand.

Kenmerken

Overdracht

Status
Verkocht onder voorbehoud
Prijs
€ 365.000 k.k.
Oplevering
In overleg

Bouw

Soort woonhuis
Eengezinswoning, Tussenwoning
Soort bouw
Bestaande bouw
Bouwjaar
1965
Onderhoud binnen
Redelijk
Onderhoud buiten
Redelijk

Oppervlakten en inhoud

Woonoppervlakte
111m²
Perceeloppervlakte
280m²
Inhoud
393m³

Indeling

Aantal kamers
5
Aantal slaapkamers
4
Aantal badkamers
1
Aantal verdiepingen
3
Voorzieningen
Dakraam, Natuurlijke ventilatie

Energie

Energielabel
C
Isolatie
Dubbel glas
Warm water
C.V.-ketel
Verwarming
C.V.-ketel
Ketel
(2016, Combi-ketel, Eigendom)

Buitenruimte

Ligging
In woonwijk
Tuin
Achtertuin, Voortuin
Achtertuin
Noordwest, 132m², 600×2200cm
Schuur
Vrijstaand steen

Garage

Soort garage
Garagebox
Capaciteit
1

Locatie

[ { "address": "Rijtselaan 6", "zipCode": "4941 XB", "city": "Raamsdonksveer", "lat": 51.6931345, "lng": 4.868802, "heading": 0, "pitch": 0 } ]
[{"featureType":"water","elementType":"geometry","stylers":[{"color":"#e9e9e9"},{"lightness":17}]},{"featureType":"landscape","elementType":"geometry","stylers":[{"color":"#f5f5f5"},{"lightness":20}]},{"featureType":"road.highway","elementType":"geometry.fill","stylers":[{"color":"#ffffff"},{"lightness":17}]},{"featureType":"road.highway","elementType":"geometry.stroke","stylers":[{"color":"#ffffff"},{"lightness":29},{"weight":0.2}]},{"featureType":"road.arterial","elementType":"geometry","stylers":[{"color":"#ffffff"},{"lightness":18}]},{"featureType":"road.local","elementType":"geometry","stylers":[{"color":"#ffffff"},{"lightness":16}]},{"featureType":"poi","elementType":"geometry","stylers":[{"color":"#f5f5f5"},{"lightness":21}]},{"featureType":"poi.park","elementType":"geometry","stylers":[{"color":"#dedede"},{"lightness":21}]},{"elementType":"labels.text.stroke","stylers":[{"visibility":"on"},{"color":"#ffffff"},{"lightness":16}]},{"elementType":"labels.text.fill","stylers":[{"saturation":36},{"color":"#333333"},{"lightness":40}]},{"elementType":"labels.icon","stylers":[{"visibility":"off"}]},{"featureType":"transit","elementType":"geometry","stylers":[{"color":"#f2f2f2"},{"lightness":19}]},{"featureType":"administrative","elementType":"geometry.fill","stylers":[{"color":"#fefefe"},{"lightness":20}]},{"featureType":"administrative","elementType":"geometry.stroke","stylers":[{"color":"#fefefe"},{"lightness":17},{"weight":1.2}]}]

Plattegronden

Rijtselaan 6 Raamsdonksveer

Contact opnemen
Interesse in deze woning? Vul onderstaande formulier in of bel 0162 - 67 24 24

Uw bericht is naar ons verzonden. Wij nemen zo snel mogelijk contact met u op.

Sorry, we kunnen helaas niet met zekerheid vaststellen of u een mens of een geautomatiseerde bot/spammer bent. Hierdoor kunnen we het formulier dat u heeft ingevuld niet verzenden. Probeer het opnieuw of neem direct contact op met de makelaar via e-mail.

Er is iets mis gegaan met het versturen van het formulier.
Controleer of u alle velden (goed) heeft ingevoerd en probeer het nog een keer.

recaptcha
reCAPTCHA
PrivacyTerms
van

Goedenavond 👋

Benieuwd naar de waarde van uw huis?

U weet het al binnen 1 minuut. Laten we beginnen!

Wat is de reden van uw aanvraag?
Ik wil graag...

Er zijn meerdere antwoorden mogelijk.

Wanneer wilt u verhuizen?

We zijn er bijna 🎉

Om het rapport op te maken hebben we een aantal gegevens nodig

recaptcha
reCAPTCHA
PrivacyTerms

Uw woningwaarde wordt berekend... 🚀

loading

Bedankt %name%! De woningwaarde van %address% is berekend 🥳

Check uw mail voor het rapport!

success
Wat is mijn huis waard?
Whatsapp Icon
Snel antwoord op je vraag?