We gebruiken cookies om de website naar behoren te laten werken, om functies voor social media te bieden en om onze website te analyseren. Op onze website kun je ook ons privacybeleid vinden.

Prinses Margrietstraat 24, 2-onder-1-kapwoning in Hooge Zwaluwe - Biemans Made Makelaardij

Prinses Margrietstraat 24, Hooge Zwaluwe

Omschrijving

ALGEMEEN:
Deze verrassende 2 onder 1 kapwoning met oprit en aanpandige garage biedt opvallend veel ruimte. Zo is er aan de achterzijde een grote serre aangebouwd zodat de woonoppervlakte op de begane grond aanzienlijk is verruimd. De serre biedt middels een schuifpui toegang tot de tuin en de garage.
Met een prettige indeling waaronder vier prima slaapkamers en de serre aan de achterzijde, biedt deze woning diverse pluspunten. Maar met modernisering dient rekening gehouden te worden. De aanpandige garage, oprit en een zonnige achtertuin op het zuidwesten maken het geheel compleet. Door de aantrekkelijke ligging nabij de A16 en A59 zijn steden als Dordrecht, Rotterdam en Breda uitstekend bereikbaar.

INDELING:
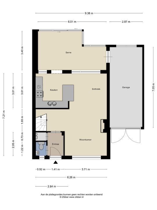
BEGANE GROND:
Hal/entree met meterkast (6 groepen, aardlek) en toilet met fonteintje.

Gezellige T-vorm woonkamer met open trap naar 1e verdieping en openhaardpartij. Aan de voorzijde van de woonkamer is het raam voorzien van een elektrisch rolluik.

Semi-open keuken aan de achterzijde met gedateerde inrichting voorzien van gaskookplaat, elektrische oven, vaatwasser, afzuigkap, dubbele spoelbak.

Aan de achterzijde vinden we de serre met elektrische zonwering en kunststof schuifpui, waardoor de tuin makkelijk te bereiken is.

1e VERDIEPING:
Overloop met vaste kast. Drie slaapkamers, waarvan één met aansluiting voor wasmachine en vaste wastafel. De 2 slaapkamers aan de achterzijde zijn voorzien van rolluiken.

Badkamer met douchecabine, wandcloset, hoekbad, badmeubel en mechanische afzuiging.

2e VERDIEPING:
Via vaste trap te bereiken voorzolder met opstelplaats van de CV-combiketel (Vaillant, 2016).
Zolderkamer met dakraam.

TUIN:
De achtertuin is gelegen op het zuidwesten en biedt veel privacy. De aanpandige garage en oprit zijn gesitueerd naast de woning.

Kenmerken

Overdracht

Status
Beschikbaar
Prijs
€ 370.000 k.k.
Oplevering
In overleg

Bouw

Soort woonhuis
Eengezinswoning, 2-onder-1-kapwoning
Soort bouw
Bestaande bouw
Bouwjaar
1972
Onderhoud binnen
Redelijk
Onderhoud buiten
Redelijk

Oppervlakten en inhoud

Woonoppervlakte
133m²
Perceeloppervlakte
245m²
Overig oppervlakte
20m²
Inhoud
542m³

Indeling

Aantal kamers
6
Aantal slaapkamers
4
Aantal badkamers
1
Aantal verdiepingen
3
Voorzieningen
Rolluiken, Buitenzonwering, Rookkanaal

Energie

Energielabel
D
Isolatie
Gedeeltelijk dubbel glas
Warm water
C.V.-ketel
Verwarming
C.V.-ketel
Ketel
Vaillant (2016, Combi-ketel, Eigendom)

Buitenruimte

Ligging
Aan rustige weg, In woonwijk
Tuin
Achtertuin, Voortuin
Achtertuin
81m², 900×900cm

Garage

Soort garage
Aangebouwd steen
Capaciteit
1
Voorzieningen
Voorzien van elektra

Locatie

[ { "address": "Prinses Margrietstraat 24", "zipCode": "4927 AJ", "city": "Hooge Zwaluwe", "lat": 51.690473, "lng": 4.7410405, "heading": 0, "pitch": 0 } ]
[{"featureType":"water","elementType":"geometry","stylers":[{"color":"#e9e9e9"},{"lightness":17}]},{"featureType":"landscape","elementType":"geometry","stylers":[{"color":"#f5f5f5"},{"lightness":20}]},{"featureType":"road.highway","elementType":"geometry.fill","stylers":[{"color":"#ffffff"},{"lightness":17}]},{"featureType":"road.highway","elementType":"geometry.stroke","stylers":[{"color":"#ffffff"},{"lightness":29},{"weight":0.2}]},{"featureType":"road.arterial","elementType":"geometry","stylers":[{"color":"#ffffff"},{"lightness":18}]},{"featureType":"road.local","elementType":"geometry","stylers":[{"color":"#ffffff"},{"lightness":16}]},{"featureType":"poi","elementType":"geometry","stylers":[{"color":"#f5f5f5"},{"lightness":21}]},{"featureType":"poi.park","elementType":"geometry","stylers":[{"color":"#dedede"},{"lightness":21}]},{"elementType":"labels.text.stroke","stylers":[{"visibility":"on"},{"color":"#ffffff"},{"lightness":16}]},{"elementType":"labels.text.fill","stylers":[{"saturation":36},{"color":"#333333"},{"lightness":40}]},{"elementType":"labels.icon","stylers":[{"visibility":"off"}]},{"featureType":"transit","elementType":"geometry","stylers":[{"color":"#f2f2f2"},{"lightness":19}]},{"featureType":"administrative","elementType":"geometry.fill","stylers":[{"color":"#fefefe"},{"lightness":20}]},{"featureType":"administrative","elementType":"geometry.stroke","stylers":[{"color":"#fefefe"},{"lightness":17},{"weight":1.2}]}]

Plattegronden

Video Prinses Margrietstraat 24 Hooge Zwaluwe

Contact opnemen
Interesse in deze woning? Vul onderstaande formulier in of bel 0162 - 67 24 24

Uw bericht is naar ons verzonden. Wij nemen zo snel mogelijk contact met u op.

Sorry, we kunnen helaas niet met zekerheid vaststellen of u een mens of een geautomatiseerde bot/spammer bent. Hierdoor kunnen we het formulier dat u heeft ingevuld niet verzenden. Probeer het opnieuw of neem direct contact op met de makelaar via e-mail.

Er is iets mis gegaan met het versturen van het formulier.
Controleer of u alle velden (goed) heeft ingevoerd en probeer het nog een keer.

recaptcha
reCAPTCHA
PrivacyTerms
van

Goedenavond 👋

Benieuwd naar de waarde van uw huis?

U weet het al binnen 1 minuut. Laten we beginnen!

Wat is de reden van uw aanvraag?
Ik wil graag...

Er zijn meerdere antwoorden mogelijk.

Wanneer wilt u verhuizen?

We zijn er bijna 🎉

Om het rapport op te maken hebben we een aantal gegevens nodig

recaptcha
reCAPTCHA
PrivacyTerms

Uw woningwaarde wordt berekend... 🚀

loading

Bedankt %name%! De woningwaarde van %address% is berekend 🥳

Check uw mail voor het rapport!

success
Wat is mijn huis waard?
Whatsapp Icon
Snel antwoord op je vraag?