We gebruiken cookies om de website naar behoren te laten werken, om functies voor social media te bieden en om onze website te analyseren. Op onze website kun je ook ons privacybeleid vinden.

Plantsoen 28, Hoekwoning in Lage Zwaluwe - Biemans Made Makelaardij

Plantsoen 28, Lage Zwaluwe

Omschrijving

ALGEMEEN:
Zeer karakteristieke en fraai gemoderniseerde hoekwoning met garage en oprit. Door de jaren heen is de woning vakkundig gerenoveerd en gemoderniseerd waarbij de authentieke elementen bewaard zijn gebleven. Zo ademt de woning nog steeds de kenmerkende sfeer van begin vorige eeuw, maar dan in een nieuw jasje met alle hedendaagse comfort en luxe. Zo zijn de keuken en badkamer luxe en van recente datum. Door de centrale ligging in Lage Zwaluwe zijn steden als Breda, Dordrecht en Rotterdam gemakkelijk bereikbaar.

INDELING:
BEGANE GROND:
Hal/entree met vernieuwde meterkast (11 groepen en aardlekschakelaar), toiletgelegenheid met wandcloset en fonteintje.

L-vormige, gezellige woonkamer voorzien van eiken vloerdelen, spachtelputz wanden en een stucwerk plafond met sierlijsten. De karakteristieke glas-in-lood bovenramen zorgen voor een warme en sfeervolle uitstraling.

Open keuken (2016) met moderne keukeninrichting, uitgerust met o.a. een granieten aanrechtblad, 4-pits inductiekookplaat, vaatwasser, oven en diverse overige inbouwapparatuur. De keuken is afgewerkt met een laminaatvloer, stucwerk wanden en plafond en beschikt over twee praktische inbouw voorraadkasten en een ruime kelder.
Trapopgang naar de 1e verdieping.

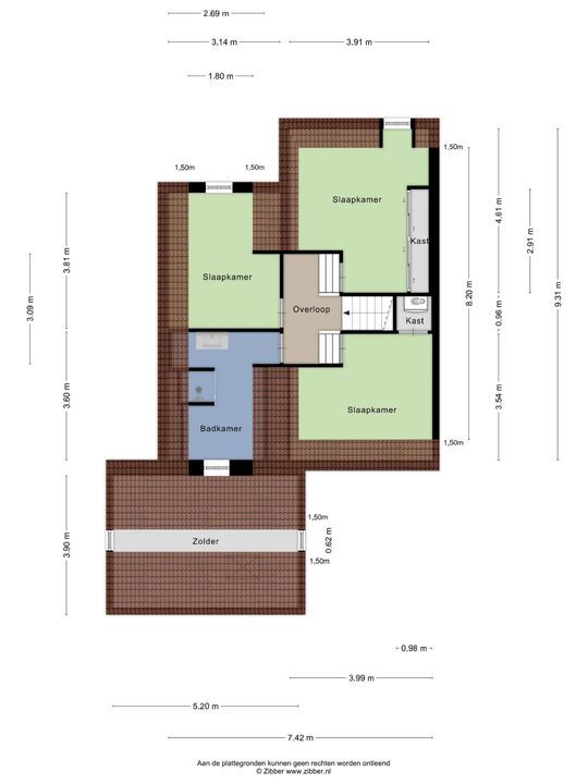
1e VERDIEPING:
De overloop biedt toegang tot 3 slaapkamers, allen afgewerkt met een laminaatvloer en spachtelputz wanden. Eén slaapkamer beschikt over een groot dakraam met rolluik en een kast met opstelplaats voor de cv-combiketel (2013).
De ouderslaapkamer is voorzien van een vaste kastenwand.

Luxe badkamer (2020) met inloopdouche, wandcloset, vaste wastafel met badmeubel en aansluiting voor wasmachine en droger.

TUIN:
De geheel verharde tuin is onderhoudsvriendelijk aangelegd en beschikt over een achterom en een moderne overkapping uit 2015.
Aangebouwde garage met vliering, verwarming, elektra en openslaande deuren.

Kenmerken

Overdracht

Status
Beschikbaar
Prijs
€ 480.000 k.k.
Oplevering
In overleg

Bouw

Soort woonhuis
Herenhuis, Hoekwoning
Soort bouw
Bestaande bouw
Bouwjaar
1905
Onderhoud binnen
Goed
Onderhoud buiten
Goed

Oppervlakten en inhoud

Woonoppervlakte
114m²
Perceeloppervlakte
205m²
Overig oppervlakte
38m²
Inhoud
536m³

Indeling

Aantal kamers
4
Aantal slaapkamers
3
Aantal badkamers
1
Aantal verdiepingen
2
Voorzieningen
Dakraam, Rolluiken

Energie

Energielabel
E
Isolatie
Dakisolatie, Dubbel glas
Warm water
C.V.-ketel
Verwarming
C.V.-ketel
Ketel
remeha (2013, Combi-ketel, Eigendom)

Buitenruimte

Ligging
Aan drukke weg
Tuin
Achtertuin, Voortuin, Zijtuin
Achtertuin
Noordwest, 72m², 900×800cm

Garage

Soort garage
Aangebouwd steen
Capaciteit
1
Voorzieningen
Met vliering, Voorzien van elektra, Voorzien van verwarming

Locatie

[ { "address": "Plantsoen 28", "zipCode": "4926 RB", "city": "Lage Zwaluwe", "lat": 51.7048817, "lng": 4.7067881, "heading": 0, "pitch": 0 } ]
[{"featureType":"water","elementType":"geometry","stylers":[{"color":"#e9e9e9"},{"lightness":17}]},{"featureType":"landscape","elementType":"geometry","stylers":[{"color":"#f5f5f5"},{"lightness":20}]},{"featureType":"road.highway","elementType":"geometry.fill","stylers":[{"color":"#ffffff"},{"lightness":17}]},{"featureType":"road.highway","elementType":"geometry.stroke","stylers":[{"color":"#ffffff"},{"lightness":29},{"weight":0.2}]},{"featureType":"road.arterial","elementType":"geometry","stylers":[{"color":"#ffffff"},{"lightness":18}]},{"featureType":"road.local","elementType":"geometry","stylers":[{"color":"#ffffff"},{"lightness":16}]},{"featureType":"poi","elementType":"geometry","stylers":[{"color":"#f5f5f5"},{"lightness":21}]},{"featureType":"poi.park","elementType":"geometry","stylers":[{"color":"#dedede"},{"lightness":21}]},{"elementType":"labels.text.stroke","stylers":[{"visibility":"on"},{"color":"#ffffff"},{"lightness":16}]},{"elementType":"labels.text.fill","stylers":[{"saturation":36},{"color":"#333333"},{"lightness":40}]},{"elementType":"labels.icon","stylers":[{"visibility":"off"}]},{"featureType":"transit","elementType":"geometry","stylers":[{"color":"#f2f2f2"},{"lightness":19}]},{"featureType":"administrative","elementType":"geometry.fill","stylers":[{"color":"#fefefe"},{"lightness":20}]},{"featureType":"administrative","elementType":"geometry.stroke","stylers":[{"color":"#fefefe"},{"lightness":17},{"weight":1.2}]}]

Plattegronden

Plantsoen 28 Lage Zwaluwe

Contact opnemen
Interesse in deze woning? Vul onderstaande formulier in of bel 0162 - 67 24 24

Uw bericht is naar ons verzonden. Wij nemen zo snel mogelijk contact met u op.

Sorry, we kunnen helaas niet met zekerheid vaststellen of u een mens of een geautomatiseerde bot/spammer bent. Hierdoor kunnen we het formulier dat u heeft ingevuld niet verzenden. Probeer het opnieuw of neem direct contact op met de makelaar via e-mail.

Er is iets mis gegaan met het versturen van het formulier.
Controleer of u alle velden (goed) heeft ingevoerd en probeer het nog een keer.

recaptcha
reCAPTCHA
PrivacyTerms
van

Goedenavond 👋

Benieuwd naar de waarde van uw huis?

U weet het al binnen 1 minuut. Laten we beginnen!

Wat is de reden van uw aanvraag?
Ik wil graag...

Er zijn meerdere antwoorden mogelijk.

Wanneer wilt u verhuizen?

We zijn er bijna 🎉

Om het rapport op te maken hebben we een aantal gegevens nodig

recaptcha
reCAPTCHA
PrivacyTerms

Uw woningwaarde wordt berekend... 🚀

loading

Bedankt %name%! De woningwaarde van %address% is berekend 🥳

Check uw mail voor het rapport!

success
Wat is mijn huis waard?
Whatsapp Icon
Snel antwoord op je vraag?