We gebruiken cookies om de website naar behoren te laten werken, om functies voor social media te bieden en om onze website te analyseren. Op onze website kun je ook ons privacybeleid vinden.

Klaproos 21, Geschakelde woning in Made - Biemans Made Makelaardij

Klaproos 21, Made

Omschrijving

ALGEMEEN:
Deze fraaie, middels de garage geschakelde woning met oprit en veranda is gelegen in de geliefde woonwijk “Prinsenpolder”. Zowel de uitgestrekte polders als het centrum van Made bevinden zich op korte afstand. De woning beschikt over een goede isolatie, 9 zonnepanelen en een hybride warmtepomp (2022) wat zorgt voor comfortabel en energiezuinig wonen.
De woning is aan de achterzijde met ca. 2,4 meter uitgebouwd waardoor er een ruime en lichte woonkamer is ontstaan. Daarnaast is de voormalige garage inpandig omgebouwd tot berging en bijkeuken hetgeen zorgt voor extra praktische ruimte. Met vier ruime slaapkamers, een dakkapel op de tweede verdieping en een veranda in de zonnige achtertuin is dit een ideale gezinswoning.

INDELING:
BEGANE GROND:
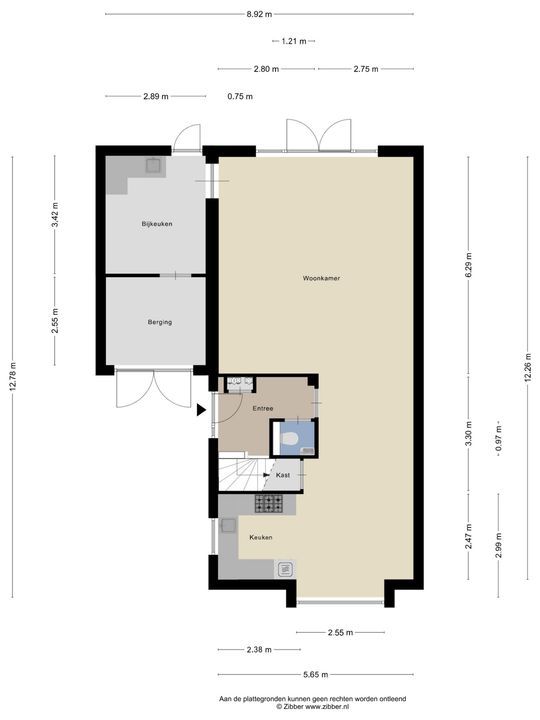
Zij-entree/hal met meterkast (8 groepen en aardlekschakelaars), toilet met wandcloset en fonteintje en trapopgang naar de eerste verdieping.

De keuken bevindt zich aan de straatzijde en is uitgevoerd in een U-opstelling met een composiet aanrechtblad. De keuken is voorzien van een 6-pits gasfornuis, koelkast, combimagnetron, vaatwasser, afzuigkap en een praktische voorraadkast.

De uitgebouwde woonkamer is afgewerkt met een pvc-vloer, spackwerk wanden en plafond en deels behang. Door de openslaande tuindeuren is er een fijne verbinding met de tuin en veel lichtinval.

Vanuit de woonkamer, tevens toegang tot de berging en bijkeuken (voorheen garage) met opstelling voor extra koel-/vriesapparatuur.

1e VERDIEPING:
Overloop met toiletgelegenheid voorzien van wandcloset en fonteintje.

De verdieping beschikt over drie slaapkamers. Twee slaapkamers bevinden zich aan de achterzijde en zijn afgewerkt met een laminaatvloer, spackwerk wanden en plafond. De ouderslaapkamer bevindt zich aan de voorzijde.

De badkamer is compleet uitgevoerd met een ligbad, douchecabine, badmeubel met dubbele vaste wastafel en mechanische ventilatie.

2e VERDIEPING:
Via vaste trap bereikbare tweede verdieping met betonvloer. Voorzolder met opstelplaats van de cv-combiketel (Remeha, 2022), hybride warmtepomp, ventilatiebox en aansluiting voor de wasmachine.

Ruime zolderkamer met dakkapel, voldoende bergruimte en voorzien van vloerbedekking.

TUIN:
De achtertuin is gelegen op het zuiden, waardoor je hier volop van de zon kunt genieten. In de tuin bevindt zich een gezellige veranda en een achterom.

Aan de voorzijde van de woning is parkeergelegenheid op eigen terrein met voorbereiding voor een laadpaal.

Kenmerken

Overdracht

Status
Beschikbaar
Prijs
€ 650.000 k.k.
Oplevering
In overleg

Bouw

Soort woonhuis
Eengezinswoning, Geschakelde woning
Soort bouw
Bestaande bouw
Bouwjaar
2011
Onderhoud binnen
Uitstekend
Onderhoud buiten
Uitstekend

Oppervlakten en inhoud

Woonoppervlakte
174m²
Perceeloppervlakte
251m²
Overig oppervlakte
7m²
Inhoud
643m³

Indeling

Aantal kamers
6
Aantal slaapkamers
4
Aantal badkamers
1
Aantal verdiepingen
3
Voorzieningen
Glasvezel kabel, Mechanische ventilatie, Zonnepanelen

Energie

Energielabel
A
Isolatie
Volledig geisoleerd
Warm water
C.V.-ketel
Verwarming
C.V.-ketel, Vloerverwarming gedeeltelijk, Warmtepomp
Ketel
(2022, Combi-ketel, Eigendom)

Buitenruimte

Ligging
Aan rustige weg, In woonwijk
Tuin
Achtertuin, Voortuin
Achtertuin
Zuidoost, 90m², 900×1000cm

Garage

Soort garage
Garage mogelijk

Locatie

[ { "address": "Klaproos 21", "zipCode": "4921 JK", "city": "Made", "lat": 51.6770712, "lng": 4.7828125, "heading": 0, "pitch": 0 } ]
[{"featureType":"water","elementType":"geometry","stylers":[{"color":"#e9e9e9"},{"lightness":17}]},{"featureType":"landscape","elementType":"geometry","stylers":[{"color":"#f5f5f5"},{"lightness":20}]},{"featureType":"road.highway","elementType":"geometry.fill","stylers":[{"color":"#ffffff"},{"lightness":17}]},{"featureType":"road.highway","elementType":"geometry.stroke","stylers":[{"color":"#ffffff"},{"lightness":29},{"weight":0.2}]},{"featureType":"road.arterial","elementType":"geometry","stylers":[{"color":"#ffffff"},{"lightness":18}]},{"featureType":"road.local","elementType":"geometry","stylers":[{"color":"#ffffff"},{"lightness":16}]},{"featureType":"poi","elementType":"geometry","stylers":[{"color":"#f5f5f5"},{"lightness":21}]},{"featureType":"poi.park","elementType":"geometry","stylers":[{"color":"#dedede"},{"lightness":21}]},{"elementType":"labels.text.stroke","stylers":[{"visibility":"on"},{"color":"#ffffff"},{"lightness":16}]},{"elementType":"labels.text.fill","stylers":[{"saturation":36},{"color":"#333333"},{"lightness":40}]},{"elementType":"labels.icon","stylers":[{"visibility":"off"}]},{"featureType":"transit","elementType":"geometry","stylers":[{"color":"#f2f2f2"},{"lightness":19}]},{"featureType":"administrative","elementType":"geometry.fill","stylers":[{"color":"#fefefe"},{"lightness":20}]},{"featureType":"administrative","elementType":"geometry.stroke","stylers":[{"color":"#fefefe"},{"lightness":17},{"weight":1.2}]}]

Plattegronden

Klaproos 21 Made

Contact opnemen
Interesse in deze woning? Vul onderstaande formulier in of bel 0162 - 67 24 24

Uw bericht is naar ons verzonden. Wij nemen zo snel mogelijk contact met u op.

Sorry, we kunnen helaas niet met zekerheid vaststellen of u een mens of een geautomatiseerde bot/spammer bent. Hierdoor kunnen we het formulier dat u heeft ingevuld niet verzenden. Probeer het opnieuw of neem direct contact op met de makelaar via e-mail.

Er is iets mis gegaan met het versturen van het formulier.
Controleer of u alle velden (goed) heeft ingevoerd en probeer het nog een keer.

recaptcha
reCAPTCHA
PrivacyTerms
van

Goedenavond 👋

Benieuwd naar de waarde van uw huis?

U weet het al binnen 1 minuut. Laten we beginnen!

Wat is de reden van uw aanvraag?
Ik wil graag...

Er zijn meerdere antwoorden mogelijk.

Wanneer wilt u verhuizen?

We zijn er bijna 🎉

Om het rapport op te maken hebben we een aantal gegevens nodig

recaptcha
reCAPTCHA
PrivacyTerms

Uw woningwaarde wordt berekend... 🚀

loading

Bedankt %name%! De woningwaarde van %address% is berekend 🥳

Check uw mail voor het rapport!

success
Wat is mijn huis waard?
Whatsapp Icon
Snel antwoord op je vraag?