We gebruiken cookies om de website naar behoren te laten werken, om functies voor social media te bieden en om onze website te analyseren. Op onze website kun je ook ons privacybeleid vinden.

Kerkstraat 66, Vrijstaande woning in Lage Zwaluwe - Biemans Made Makelaardij

Kerkstraat 66, Lage Zwaluwe

Omschrijving

ALGEMEEN:
Deze karakteristieke, verrassend ruime woning is gesitueerd aan het fraaie dorpslint van Lage Zwaluwe en maakt deel uit van het beschermd stads- en dorpsgezicht. De voormalige winkel met grote zolder biedt uitstekende mogelijkheden voor een combinatie van wonen en werken aan huis. Ook een vorm van mantelzorg behoort tot de mogelijkheden. De indeling van de woning is speels en verrassend en biedt derhalve veel gezellige leefruimtes. Zo vinden we op de begane grond niet alleen een mooie woonkamer maar ook een fijne eetkamer. Op de 1e verdieping bevinden zich 3 slaapkamers, alle 3 met een dakkapel.
De achtertuin grenst aan agrarisch gebied en biedt een kilometerslang vrij uitzicht. Daarnaast beschikt de woning over 12 zonnepanelen uit 2024 en ligt de jachthaven praktisch om de hoek.

INDELING:

BEGANE GROND:
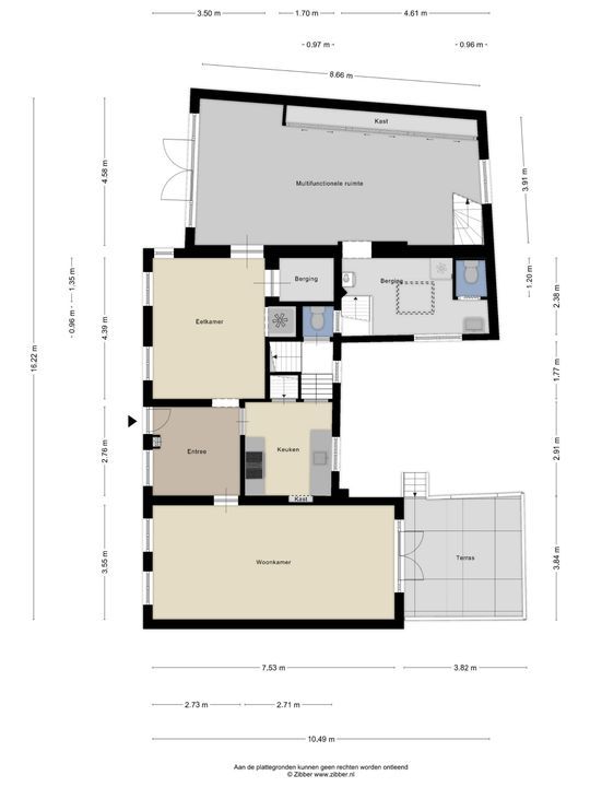
Hal/entree met terrazzo vloer, vernieuwde meterkast, toilet en trapopgang.
Eetkamer aan de voorzijde met een fraai uitzicht over de kenmerkende dijk.
Doorzonwoonkamer met pelletkachel en tuindeuren naar het terras.
Dichte keuken aan de achterzijde met een terrazzo vloer, hardstenen aanrechtblad, een Smeg 6-pits gasfornuis met dubbele oven, vaatwasser en diverse overige inbouwapparatuur.
Aangrenzende en van binnenuit bereikbare voormalige winkelruimte met vloerverwarming, separate cv-ketel (2020) en toilet. Ideaal geschikt voor slaapkamer maar ook voor mantelzorg, kantoor of werkplek aan huis. Middels vaste trap te bereiken zolder.

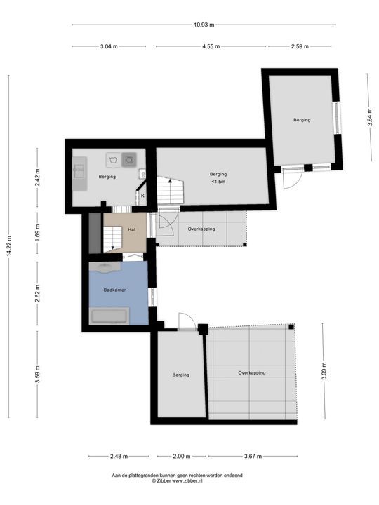
SOUTERRAIN:
Praktische ruimte met wasmachineaansluiting, pantry, cv-combiketel (Remeha 2011) en een eenvoudige badkamer met ligbad, badmeubel en mechanische ventilatie.

1e VERDIEPING:
De overloop biedt toegang tot drie slaapkamers met dakkapel. Twee dakkappelen aan de voorzijde en twee aan de achterzijde. 1 slaapkamer is voorzien van aansluitpunt voor water (voorheen twee kamers).
De grootste slaapkamer beschikt over een dubbele dakkapel en vaste wastafel.

TUIN:
De verzorgde achtertuin is gelegen op het noordoosten en biedt een weids, vrij uitzicht.

Kenmerken

Overdracht

Status
Beschikbaar
Prijs
€ 425.000 k.k.
Oplevering
In overleg

Bouw

Soort woonhuis
Eengezinswoning, Vrijstaande woning
Soort bouw
Bestaande bouw
Bouwjaar
1930
Onderhoud binnen
Goed
Onderhoud buiten
Goed
Bijzonderheden
Beschermd stads- of dorpgezicht

Oppervlakten en inhoud

Woonoppervlakte
118m²
Perceeloppervlakte
272m²
Overig oppervlakte
95m²
Inhoud
789m³

Indeling

Aantal kamers
6
Aantal slaapkamers
3
Aantal badkamers
1
Aantal verdiepingen
3
Voorzieningen
Zonnepanelen

Energie

Energielabel
C
Isolatie
Dakisolatie, Gedeeltelijk dubbel glas, Muurisolatie, Vloerisolatie
Warm water
C.V.-ketel
Verwarming
C.V.-ketel, Pelletkachel, Vloerverwarming gedeeltelijk
Ketel
(2020, Combi-ketel, Eigendom)

Buitenruimte

Ligging
Vrij uitzicht
Tuin
Achtertuin
Achtertuin
Noordoost, 116m², 1450×800cm
Schuur
Aangebouwd steen
Faciliteiten schuur
Met vliering, Voorzien van elektra, Voorzien van verwarming, Voorzien van water

Garage

Locatie

[ { "address": "Kerkstraat 66", "zipCode": "4926 CX", "city": "Lage Zwaluwe", "lat": 51.711954, "lng": 4.7008691, "heading": 0, "pitch": 0 } ]
[{"featureType":"water","elementType":"geometry","stylers":[{"color":"#e9e9e9"},{"lightness":17}]},{"featureType":"landscape","elementType":"geometry","stylers":[{"color":"#f5f5f5"},{"lightness":20}]},{"featureType":"road.highway","elementType":"geometry.fill","stylers":[{"color":"#ffffff"},{"lightness":17}]},{"featureType":"road.highway","elementType":"geometry.stroke","stylers":[{"color":"#ffffff"},{"lightness":29},{"weight":0.2}]},{"featureType":"road.arterial","elementType":"geometry","stylers":[{"color":"#ffffff"},{"lightness":18}]},{"featureType":"road.local","elementType":"geometry","stylers":[{"color":"#ffffff"},{"lightness":16}]},{"featureType":"poi","elementType":"geometry","stylers":[{"color":"#f5f5f5"},{"lightness":21}]},{"featureType":"poi.park","elementType":"geometry","stylers":[{"color":"#dedede"},{"lightness":21}]},{"elementType":"labels.text.stroke","stylers":[{"visibility":"on"},{"color":"#ffffff"},{"lightness":16}]},{"elementType":"labels.text.fill","stylers":[{"saturation":36},{"color":"#333333"},{"lightness":40}]},{"elementType":"labels.icon","stylers":[{"visibility":"off"}]},{"featureType":"transit","elementType":"geometry","stylers":[{"color":"#f2f2f2"},{"lightness":19}]},{"featureType":"administrative","elementType":"geometry.fill","stylers":[{"color":"#fefefe"},{"lightness":20}]},{"featureType":"administrative","elementType":"geometry.stroke","stylers":[{"color":"#fefefe"},{"lightness":17},{"weight":1.2}]}]

Plattegronden

Kerkstraat 66 Lage Zwaluwe

Contact opnemen
Interesse in deze woning? Vul onderstaande formulier in of bel 0162 - 67 24 24

Uw bericht is naar ons verzonden. Wij nemen zo snel mogelijk contact met u op.

Sorry, we kunnen helaas niet met zekerheid vaststellen of u een mens of een geautomatiseerde bot/spammer bent. Hierdoor kunnen we het formulier dat u heeft ingevuld niet verzenden. Probeer het opnieuw of neem direct contact op met de makelaar via e-mail.

Er is iets mis gegaan met het versturen van het formulier.
Controleer of u alle velden (goed) heeft ingevoerd en probeer het nog een keer.

recaptcha
reCAPTCHA
PrivacyTerms
van

Goedenavond 👋

Benieuwd naar de waarde van uw huis?

U weet het al binnen 1 minuut. Laten we beginnen!

Wat is de reden van uw aanvraag?
Ik wil graag...

Er zijn meerdere antwoorden mogelijk.

Wanneer wilt u verhuizen?

We zijn er bijna 🎉

Om het rapport op te maken hebben we een aantal gegevens nodig

recaptcha
reCAPTCHA
PrivacyTerms

Uw woningwaarde wordt berekend... 🚀

loading

Bedankt %name%! De woningwaarde van %address% is berekend 🥳

Check uw mail voor het rapport!

success
Wat is mijn huis waard?
Whatsapp Icon
Snel antwoord op je vraag?