We gebruiken cookies om de website naar behoren te laten werken, om functies voor social media te bieden en om onze website te analyseren. Op onze website kun je ook ons privacybeleid vinden.

Iepenlaan 6, 2-onder-1-kapwoning in Made - Biemans Made Makelaardij

Iepenlaan 6, Made

Omschrijving

ALGEMEEN:
Deze grote 2 onder 1 kapwoning met aangebouwde serre, garage en oprit is gelegen aan een fraaie, ruim opgezette laan in Made. De woning is keurig onderhouden. In het verlengde van de woonkamer is over de gehele breedte een serre aangebouwd waardoor er een riante, prettige woonoppervlakte is ontstaan. Vanuit deze serre is ook de garage bereikbaar. Op de 1e verdieping bevinden zich 3 slaapkamers, op de 2e verdieping zou je indien wenselijk een extra slaapkamer of werkruimte kunnen realiseren. De eigen oprit biedt plaats aan 2 auto’s, bovendien is er in de directe nabijheid voldoende parkeergelegenheid aanwezig. De verzorgde achtertuin met achterom is zongunstig gelegen op het zuidwesten en biedt veel privacy.

INDELING:
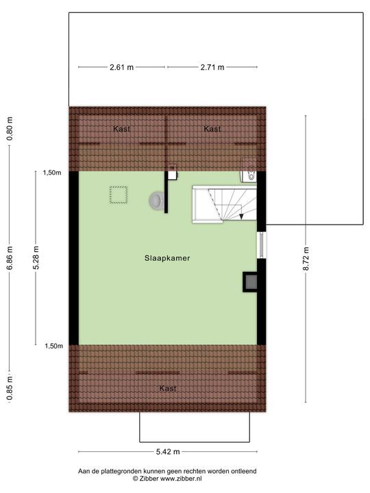
BEGANE GROND:
Zij-entree met meterkast, toiletgelegenheid met fonteintje, trapopgang naar 1e verdieping.

Gezellige L-vormige woonkamer met erker aan de straatzijde, deze kamer is afgewerkt met een parketvloer, structuurverf wanden en spuitwerk plafondafwerking. Dubbele deuren welke toegang bieden tot de aangebouwde serre. Deze is voorzien van een schuifpui met zonnescherm.

Semi-open keuken met hoekopstelling voorzien van o.a. 4 pits inductiekookplaat, combi-oven/magnetron, close-in boiler, vaatwasser en diverse overige inbouwapparatuur.

Vanuit de serre heb je toegang toe de garage voorzien van wasmachine-aansluiting en dubbel openslaande deuren naar de oprit.

1e VERDIEPING:
De overloop biedt toegang tot 3 slaapkamers waarvan 1 met vaste wastafel. De slaapkamers zijn afgewerkt met vloerbedekking, structuurverf wanden en spuitwerk plafond.

Geheel betegelde badkamer met ligbad, douchecabine, badmeubel met vaste wastafel en toilet.

2e VERDIEPING:
Middels vaste trap te bereiken, ruime zolder met vaste wastafel en opstelplaats voor de cv-combiketel (’23) welke is voorbereid voor een hybride systeem. Realiseren van een extra slaapkamer behoort tot de mogelijkheden.



TUIN:
De fraai aangelegde achtertuin is zongunstig gelegen op het zuidwesten. De achterom biedt toegang tot het achtergelegen parkeerterrein.

Kenmerken

Overdracht

Status
Beschikbaar
Prijs
€ 550.000 k.k.
Oplevering
In overleg

Bouw

Soort woonhuis
Eengezinswoning, 2-onder-1-kapwoning
Soort bouw
Bestaande bouw
Bouwjaar
1987
Onderhoud binnen
Goed
Onderhoud buiten
Goed

Oppervlakten en inhoud

Woonoppervlakte
142m²
Perceeloppervlakte
221m²
Overig oppervlakte
16m²
Inhoud
562m³

Indeling

Aantal kamers
6
Aantal slaapkamers
3
Aantal badkamers
1
Aantal verdiepingen
3

Energie

Energielabel
C
Isolatie
Dakisolatie, Muurisolatie, Dubbel glas
Warm water
C.V.-ketel
Verwarming
C.V.-ketel
Ketel
(2023, Combi-ketel, Eigendom)

Buitenruimte

Tuin
Achtertuin, Voortuin
Achtertuin
Zuidwest, 72m², 850×850cm

Garage

Soort garage
Aangebouwd steen
Capaciteit
1
Voorzieningen
Voorzien van verwarming, Voorzien van elektra, Voorzien van water

Locatie

[ { "address": "Iepenlaan 6", "zipCode": "4921 DR", "city": "Made", "lat": 51.6773886, "lng": 4.801632, "heading": 0, "pitch": 0 } ]
[{"featureType":"water","elementType":"geometry","stylers":[{"color":"#e9e9e9"},{"lightness":17}]},{"featureType":"landscape","elementType":"geometry","stylers":[{"color":"#f5f5f5"},{"lightness":20}]},{"featureType":"road.highway","elementType":"geometry.fill","stylers":[{"color":"#ffffff"},{"lightness":17}]},{"featureType":"road.highway","elementType":"geometry.stroke","stylers":[{"color":"#ffffff"},{"lightness":29},{"weight":0.2}]},{"featureType":"road.arterial","elementType":"geometry","stylers":[{"color":"#ffffff"},{"lightness":18}]},{"featureType":"road.local","elementType":"geometry","stylers":[{"color":"#ffffff"},{"lightness":16}]},{"featureType":"poi","elementType":"geometry","stylers":[{"color":"#f5f5f5"},{"lightness":21}]},{"featureType":"poi.park","elementType":"geometry","stylers":[{"color":"#dedede"},{"lightness":21}]},{"elementType":"labels.text.stroke","stylers":[{"visibility":"on"},{"color":"#ffffff"},{"lightness":16}]},{"elementType":"labels.text.fill","stylers":[{"saturation":36},{"color":"#333333"},{"lightness":40}]},{"elementType":"labels.icon","stylers":[{"visibility":"off"}]},{"featureType":"transit","elementType":"geometry","stylers":[{"color":"#f2f2f2"},{"lightness":19}]},{"featureType":"administrative","elementType":"geometry.fill","stylers":[{"color":"#fefefe"},{"lightness":20}]},{"featureType":"administrative","elementType":"geometry.stroke","stylers":[{"color":"#fefefe"},{"lightness":17},{"weight":1.2}]}]

Plattegronden

Iepenlaan 6 Made

Contact opnemen
Interesse in deze woning? Vul onderstaande formulier in of bel 0162 - 67 24 24

Uw bericht is naar ons verzonden. Wij nemen zo snel mogelijk contact met u op.

Sorry, we kunnen helaas niet met zekerheid vaststellen of u een mens of een geautomatiseerde bot/spammer bent. Hierdoor kunnen we het formulier dat u heeft ingevuld niet verzenden. Probeer het opnieuw of neem direct contact op met de makelaar via e-mail.

Er is iets mis gegaan met het versturen van het formulier.
Controleer of u alle velden (goed) heeft ingevoerd en probeer het nog een keer.

recaptcha
reCAPTCHA
PrivacyTerms
van

Goedenavond 👋

Benieuwd naar de waarde van uw huis?

U weet het al binnen 1 minuut. Laten we beginnen!

Wat is de reden van uw aanvraag?
Ik wil graag...

Er zijn meerdere antwoorden mogelijk.

Wanneer wilt u verhuizen?

We zijn er bijna 🎉

Om het rapport op te maken hebben we een aantal gegevens nodig

recaptcha
reCAPTCHA
PrivacyTerms

Uw woningwaarde wordt berekend... 🚀

loading

Bedankt %name%! De woningwaarde van %address% is berekend 🥳

Check uw mail voor het rapport!

success
Wat is mijn huis waard?
Whatsapp Icon
Snel antwoord op je vraag?