We gebruiken cookies om de website naar behoren te laten werken, om functies voor social media te bieden en om onze website te analyseren. Op onze website kun je ook ons privacybeleid vinden.

Duinhof 13, 2-onder-1-kapwoning in Made - Biemans Made Makelaardij

Duinhof 13, Made

Omschrijving

ALGEMEEN:
Deze ruime 2-onder-1-kapwoning is gelegen in een rustige, doodlopende straat met parkeergelegenheid op eigen terrein. De woning beschikt over een hoog wooncomfort dankzij de complete isolatie, kunststof kozijnen met triple glas op de begane grond en dubbel glas op de verdieping, 17 zonnepanelen, rolluiken en drie airco-units. Dit alles resulteert in een energielabel A.
De woning beschikt over een lichte L-vormige woonkamer, een moderne keuken (2020), drie slaapkamers op de eerste verdieping en een ruime zolderkamer met dakkapel. De achtertuin is gunstig gelegen op het westen en is in 2024 verrijkt met een royale overkapping met berging, waardoor je hier vrijwel het hele jaar door van de buitenruimte kunt genieten.

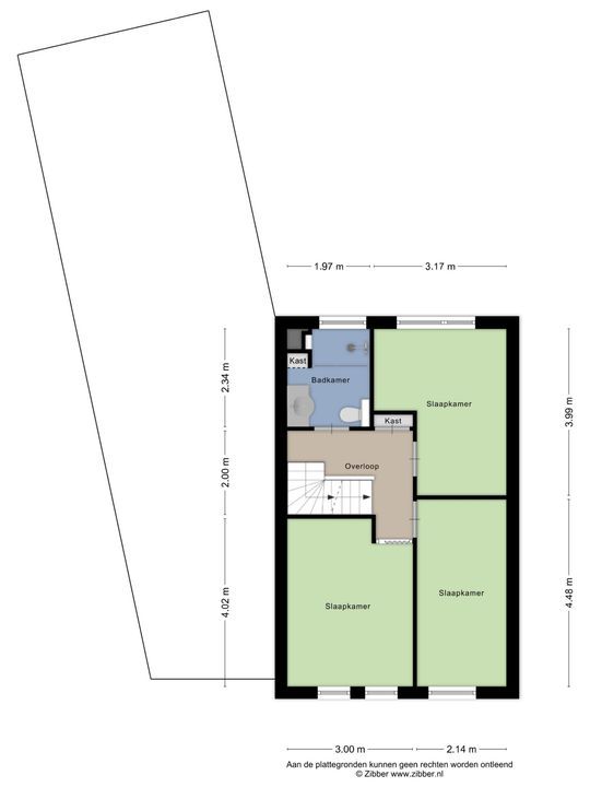
INDELING:
BEGANE GROND:
Entree met meterkast (12 groepen, aardlekschakelaars en waterontharder), trapopgang naar de eerste verdieping en toiletgelegenheid met wandcloset.

De ruime L-vormige woonkamer heeft een prettige lichtinval en is afgewerkt met eikenhouten vloerdelen, behang- en sauswerk wanden en een sauswerk plafond. De woonkamer is voorzien van airconditioning en een rolluik aan de voorzijde.

De semi-open keuken (2020) is uitgerust met een granieten aanrechtblad en diverse inbouwapparatuur waaronder een 5-pits Boretti inductiefornuis met oven, Quooker, vaatwasser, afzuigkap en overige apparatuur.

Vanuit de keuken is er toegang tot de tuin.

1e VERDIEPING:
Overloop met toegang tot drie slaapkamers, waarvan één is ingericht als kledingkamer en één is voorzien van airconditioning. Alle kamers zijn afgewerkt met een linoleumvloer, sauswerk wanden en plafonds en beschikken over rolluiken.

De moderne badkamer (2020) is uitgevoerd met een ruime inloopdouche, badmeubel met vaste wastafel, wandcloset en mechanische ventilatie.

2e VERDIEPING:
Via vaste trap bereikbare zolderverdieping met betonvloer en veel bergruimte. Dankzij de dakkapel is hier een ruime extra slaapkamer gerealiseerd. De kamer is afgewerkt met een linoleumvloer en sauswerk wanden en beschikt over airconditioning en een rolluik. Op deze verdieping bevindt zich tevens de cv-combiketel (2024).

TUIN:
De verzorgd aangelegde achtertuin is gunstig gelegen op het westen, waardoor je hier volop kunt genieten van de middag- en avondzon. In 2024 is een royale veranda geplaatst met lichtkoepel en glazen schuifwanden. Daarnaast is er een berging met aansluiting voor de wasmachine.
De achterom is eveneens overkapt, waardoor een extra praktische berging is ontstaan die tevens beschikt over een toiletgelegenheid.

Kenmerken

Overdracht

Status
Beschikbaar
Prijs
€ 550.000 k.k.
Oplevering
In overleg

Bouw

Soort woonhuis
Eengezinswoning, 2-onder-1-kapwoning
Soort bouw
Bestaande bouw
Bouwjaar
1983
Onderhoud binnen
Goed
Onderhoud buiten
Goed

Oppervlakten en inhoud

Woonoppervlakte
114m²
Perceeloppervlakte
270m²
Overig oppervlakte
21m²
Inhoud
481m³

Indeling

Aantal kamers
5
Aantal slaapkamers
4
Aantal badkamers
1
Aantal verdiepingen
3
Voorzieningen
Airconditioning, Glasvezel kabel, Mechanische ventilatie, Zonnepanelen

Energie

Energielabel
A
Isolatie
Dakisolatie, Driedubbel glas, Dubbel glas, Muurisolatie, Vloerisolatie
Verwarming
C.V.-ketel
Ketel
Intergas Kombi kompact HRE 36/30A (2024, Combi-ketel, Eigendom)

Buitenruimte

Tuin
Achtertuin, Voortuin, Zijtuin
Achtertuin
West, 75m², 1000×750cm
Schuur
Vrijstaand hout

Garage

Locatie

[ { "address": "Duinhof 13", "zipCode": "4921 TE", "city": "Made", "lat": 51.6724175, "lng": 4.7855342, "heading": 0, "pitch": 0 } ]
[{"featureType":"water","elementType":"geometry","stylers":[{"color":"#e9e9e9"},{"lightness":17}]},{"featureType":"landscape","elementType":"geometry","stylers":[{"color":"#f5f5f5"},{"lightness":20}]},{"featureType":"road.highway","elementType":"geometry.fill","stylers":[{"color":"#ffffff"},{"lightness":17}]},{"featureType":"road.highway","elementType":"geometry.stroke","stylers":[{"color":"#ffffff"},{"lightness":29},{"weight":0.2}]},{"featureType":"road.arterial","elementType":"geometry","stylers":[{"color":"#ffffff"},{"lightness":18}]},{"featureType":"road.local","elementType":"geometry","stylers":[{"color":"#ffffff"},{"lightness":16}]},{"featureType":"poi","elementType":"geometry","stylers":[{"color":"#f5f5f5"},{"lightness":21}]},{"featureType":"poi.park","elementType":"geometry","stylers":[{"color":"#dedede"},{"lightness":21}]},{"elementType":"labels.text.stroke","stylers":[{"visibility":"on"},{"color":"#ffffff"},{"lightness":16}]},{"elementType":"labels.text.fill","stylers":[{"saturation":36},{"color":"#333333"},{"lightness":40}]},{"elementType":"labels.icon","stylers":[{"visibility":"off"}]},{"featureType":"transit","elementType":"geometry","stylers":[{"color":"#f2f2f2"},{"lightness":19}]},{"featureType":"administrative","elementType":"geometry.fill","stylers":[{"color":"#fefefe"},{"lightness":20}]},{"featureType":"administrative","elementType":"geometry.stroke","stylers":[{"color":"#fefefe"},{"lightness":17},{"weight":1.2}]}]

Plattegronden

Duinhof 13 Made

Contact opnemen
Interesse in deze woning? Vul onderstaande formulier in of bel 0162 - 67 24 24

Uw bericht is naar ons verzonden. Wij nemen zo snel mogelijk contact met u op.

Sorry, we kunnen helaas niet met zekerheid vaststellen of u een mens of een geautomatiseerde bot/spammer bent. Hierdoor kunnen we het formulier dat u heeft ingevuld niet verzenden. Probeer het opnieuw of neem direct contact op met de makelaar via e-mail.

Er is iets mis gegaan met het versturen van het formulier.
Controleer of u alle velden (goed) heeft ingevoerd en probeer het nog een keer.

recaptcha
reCAPTCHA
PrivacyTerms
van

Goedenavond 👋

Benieuwd naar de waarde van uw huis?

U weet het al binnen 1 minuut. Laten we beginnen!

Wat is de reden van uw aanvraag?
Ik wil graag...

Er zijn meerdere antwoorden mogelijk.

Wanneer wilt u verhuizen?

We zijn er bijna 🎉

Om het rapport op te maken hebben we een aantal gegevens nodig

recaptcha
reCAPTCHA
PrivacyTerms

Uw woningwaarde wordt berekend... 🚀

loading

Bedankt %name%! De woningwaarde van %address% is berekend 🥳

Check uw mail voor het rapport!

success
Wat is mijn huis waard?
Whatsapp Icon
Snel antwoord op je vraag?