We gebruiken cookies om de website naar behoren te laten werken, om functies voor social media te bieden en om onze website te analyseren. Op onze website kun je ook ons privacybeleid vinden.

Dorskarstraat 27, 2-onder-1-kapwoning in Made - Biemans Made Makelaardij

Dorskarstraat 27, Made

Omschrijving

ALGEMEEN:
In de populaire woonwijk “Made-Oost” vinden we deze recent gebouwde 2 onder 1 kapwoning met oprit en garage. De woning is op de begane grond uitgebouwd zodat er een riante woonkeuken is ontstaan. In de tuin is een schitterend, multifunctioneel bijgebouw met pantry en toilet gerealiseerd. De woning is optimaal geïsoleerd, luxueus afgewerkt en biedt met o.a. 17 pv panelen en een hybride warmtepomp een optimaal wooncomfort.
De moderne keuken en exclusieve badkamer springen direct in het oog.
Naast drie ruime slaapkamers op de eerste verdieping beschikt de woning op de 2e verdieping over een royale vierde slaapkamer met dakkapel. De diepe achtertuin met bijgebouw is zongunstig gelegen op het zuidwesten en biedt volop privacy. Het bijgebouw is ook erg geschikt als extra werkruimte/kantoor.

INDELING:
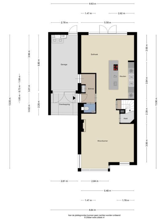
BEGANE GROND:
Zij-entree/hal met uitgebreide meterkast (11 groepen, aardlekschakelaars en waterontharder), garderobe, moderne toiletgelegenheid met wandcloset en fonteintje en toegang tot de garage.

Riante, gezellige woonkamer met sfeervolle erker aan de voorzijde, elektrische haard, inbouwspots en diepe trapkast. De ruimte is afgewerkt met een pvc-vloer met vloerverwarming, stucwerk wanden en plafond.

Uitgebouwde woonkeuken met airco-unit (warm/koud) en moderne keukeninrichting met kookeiland voorzien van 4-pits inductiekookplaat en Bora-afzuigsysteem, vaatwasser, heet-waterkraan en kastenwand met oven, combi-magnetron, grote koelkast en diepvries. De openslaande tuindeuren met zonnescherm geven toegang tot de zonnige tuin.

Vanuit de hal is de aangebouwde, betegelde garage bereikbaar met opstelplaats van de cv-ketel, hybride warmtepomp en mechanisch afzuigsysteem. Hier bevinden zich tevens de aansluitingen voor wasmachine en droger.

1e VERDIEPING:
Overloop met moderne toiletgelegenheid met wandcloset.

(Ouder)slaapkamer aan de voorzijde en twee slaapkamers aan de achterzijde, alle 3 voorzien van vloerverwarming, pvc-vloer, stucwerk wanden en plafonds.

Exclusieve badkamer met mechanische afzuiging, vrijstaand ligbad, stortdouche met Sunshower, badmeubel met dubbele wastafel en een spiegel met verlichting en verwarming.

2e VERDIEPING:
Via vaste trap bereikbare voorzolder met een tweede airco-unit (warm/koud) in het trapgat. Vlizotrap naar zolder.

Vierde slaapkamer met dakkapel en groot zijraam, modern afgewerkt en heerlijk licht.

TUIN:
De zonnige, privacy-biedende achtertuin ligt op het zuidwesten en beschikt over een groot betegeld terras, verlichting en watervoorziening.

Achter in de tuin bevindt zich een royaal buitenverblijf met keukenblok (warm water), toilet en glazen vouwwand naar de tuin. Daarnaast is er een separate berging aanwezig.

Kenmerken

Overdracht

Status
Beschikbaar
Prijs
€ 785.000 k.k.
Oplevering
In overleg

Bouw

Soort woonhuis
Eengezinswoning, 2-onder-1-kapwoning
Soort bouw
Bestaande bouw
Bouwjaar
2019
Onderhoud binnen
Goed
Onderhoud buiten
Goed

Oppervlakten en inhoud

Woonoppervlakte
161m²
Perceeloppervlakte
327m²
Overig oppervlakte
16m²
Inhoud
629m³

Indeling

Aantal kamers
5
Aantal slaapkamers
4
Aantal badkamers
1
Aantal verdiepingen
4
Voorzieningen
Airconditioning, Mechanische ventilatie, Rolluiken, Zonnepanelen

Energie

Energielabel
A+
Isolatie
Dakisolatie, Dubbel glas, Muurisolatie, Vloerisolatie
Warm water
Doorstroomboiler
Verwarming
C.V.-ketel, Vloerverwarming geheel, Warmtepomp
Ketel
Hybride (2019, Combi-ketel, Eigendom)

Buitenruimte

Ligging
Aan rustige weg, In woonwijk
Tuin
Achtertuin, Voortuin
Achtertuin
Zuidwest, 76m², 800×950cm
Schuur
Vrijstaand hout
Faciliteiten schuur
Voorzien van elektra, Voorzien van water

Garage

Soort garage
Aangebouwd steen
Capaciteit
1
Voorzieningen
Voorzien van elektra, Voorzien van water

Locatie

[ { "address": "Dorskarstraat 27", "zipCode": "4921 ZS", "city": "Made", "lat": 51.680511, "lng": 4.802018, "heading": 0, "pitch": 0 } ]
[{"featureType":"water","elementType":"geometry","stylers":[{"color":"#e9e9e9"},{"lightness":17}]},{"featureType":"landscape","elementType":"geometry","stylers":[{"color":"#f5f5f5"},{"lightness":20}]},{"featureType":"road.highway","elementType":"geometry.fill","stylers":[{"color":"#ffffff"},{"lightness":17}]},{"featureType":"road.highway","elementType":"geometry.stroke","stylers":[{"color":"#ffffff"},{"lightness":29},{"weight":0.2}]},{"featureType":"road.arterial","elementType":"geometry","stylers":[{"color":"#ffffff"},{"lightness":18}]},{"featureType":"road.local","elementType":"geometry","stylers":[{"color":"#ffffff"},{"lightness":16}]},{"featureType":"poi","elementType":"geometry","stylers":[{"color":"#f5f5f5"},{"lightness":21}]},{"featureType":"poi.park","elementType":"geometry","stylers":[{"color":"#dedede"},{"lightness":21}]},{"elementType":"labels.text.stroke","stylers":[{"visibility":"on"},{"color":"#ffffff"},{"lightness":16}]},{"elementType":"labels.text.fill","stylers":[{"saturation":36},{"color":"#333333"},{"lightness":40}]},{"elementType":"labels.icon","stylers":[{"visibility":"off"}]},{"featureType":"transit","elementType":"geometry","stylers":[{"color":"#f2f2f2"},{"lightness":19}]},{"featureType":"administrative","elementType":"geometry.fill","stylers":[{"color":"#fefefe"},{"lightness":20}]},{"featureType":"administrative","elementType":"geometry.stroke","stylers":[{"color":"#fefefe"},{"lightness":17},{"weight":1.2}]}]

Plattegronden

Dorskarstraat 27 Made

Contact opnemen
Interesse in deze woning? Vul onderstaande formulier in of bel 0162 - 67 24 24

Uw bericht is naar ons verzonden. Wij nemen zo snel mogelijk contact met u op.

Sorry, we kunnen helaas niet met zekerheid vaststellen of u een mens of een geautomatiseerde bot/spammer bent. Hierdoor kunnen we het formulier dat u heeft ingevuld niet verzenden. Probeer het opnieuw of neem direct contact op met de makelaar via e-mail.

Er is iets mis gegaan met het versturen van het formulier.
Controleer of u alle velden (goed) heeft ingevoerd en probeer het nog een keer.

recaptcha
reCAPTCHA
PrivacyTerms
van

Goedenavond 👋

Benieuwd naar de waarde van uw huis?

U weet het al binnen 1 minuut. Laten we beginnen!

Wat is de reden van uw aanvraag?
Ik wil graag...

Er zijn meerdere antwoorden mogelijk.

Wanneer wilt u verhuizen?

We zijn er bijna 🎉

Om het rapport op te maken hebben we een aantal gegevens nodig

recaptcha
reCAPTCHA
PrivacyTerms

Uw woningwaarde wordt berekend... 🚀

loading

Bedankt %name%! De woningwaarde van %address% is berekend 🥳

Check uw mail voor het rapport!

success
Wat is mijn huis waard?
Whatsapp Icon
Snel antwoord op je vraag?