We gebruiken cookies om de website naar behoren te laten werken, om functies voor social media te bieden en om onze website te analyseren. Op onze website kun je ook ons privacybeleid vinden.

Blauwvlas 2, 2-onder-1-kapwoning in Lage Zwaluwe - Biemans Made Makelaardij

Blauwvlas 2, Lage Zwaluwe

Omschrijving

ALGEMEEN:
Deze moderne, recent gebouwde, instapklare en energiezuinige 2 onder 1 kapwoning met garage en berging is gelegen in de jonge nieuwbouwwijk De Vlashoek (2021) in Lage Zwaluwe. De woning is volledig gasloos en voorzien van een warmtepomp, WTW-installatie en 10 zonnepanelen. Een uitstekend wooncomfort en lage energielasten verzekerd dus.
De woning is hoogwaardig afgewerkt en beschikt over een uitgebouwde woonkamer met openslaande tuindeuren, vier volwaardige slaapkamers en een diepe, aangebouwde garage. In de directe, kindvriendelijke omgeving zijn diverse speeltuintjes aanwezig en er is voldoende parkeergelegenheid. Bovendien is de ligging gunstig met een goede bereikbaarheid richting de uitvalswegen naar o.a. Dordrecht, Rotterdam en Breda.

INDELING:
BEGANE GROND:
Zij-entree/hal met meterkast (9 groepen en aardlek), modern toilet met wandcloset en fonteintje, trapopgang naar de eerste verdieping.

De uitgebouwde woonkamer is stijlvol afgewerkt met een visgraat PVC-vloer met vloerverwarming, renovlies behangwanden en een spackwerk plafond. In de praktische vaste kast bevindt zich de warmtepomp. Via de openslaande tuindeuren is er direct toegang tot de achtertuin.

De open keuken aan de voorzijde heeft een luxe U-opstelling en is voorzien van een 5-pits inductiekookplaat met filterafzuigkap, oven, magnetron, koelkast, vriezer, vaatwasser en spoelbak.

1e VERDIEPING:
Overloop met toegang tot drie slaapkamers. Deze verdieping is eveneens afgewerkt met een PVC-vloer met vloerverwarming, renovlies wanden en een spackwerk plafond.

De luxe, geheel betegelde badkamer is compleet uitgevoerd met ligbad, inloopdouche, badmeubel met wastafel en wandcloset.

2e VERDIEPING:
Via een vaste trap bereikbare voorzolder met kastruimte en aparte ruimte met wasmachineaansluiting en opstelplaats van de WTW-installatie.

Ruime zolderkamer, afgewerkt met een PVC-vloer en renovlies behangwanden. Dankzij de knieschotten is er extra bergruimte aanwezig.

TUIN:
De fraai aangelegde achtertuin met achterom is verzorgd ingericht met meerdere zithoeken, een sfeervolle veranda en een houten berging.

Aan de voorzijde beschikt de woning over een ruime oprit en een aangebouwde, geïsoleerde garage van circa 10 meter diep, ideaal voor hobby, opslag of het stallen van een auto.

Kenmerken

Overdracht

Status
Beschikbaar
Prijs
€ 665.000 k.k.
Oplevering
In overleg

Bouw

Soort woonhuis
Eengezinswoning, 2-onder-1-kapwoning
Soort bouw
Bestaande bouw
Bouwjaar
2021
Onderhoud binnen
Uitstekend
Onderhoud buiten
Uitstekend

Oppervlakten en inhoud

Woonoppervlakte
131m²
Perceeloppervlakte
303m²
Overig oppervlakte
31m²
Inhoud
574m³

Indeling

Aantal kamers
5
Aantal slaapkamers
4
Aantal badkamers
1
Aantal verdiepingen
3
Voorzieningen
Dakraam, Zonnepanelen

Energie

Energielabel
A
Isolatie
Dakisolatie, Muurisolatie, Vloerisolatie
Verwarming
Warmte Terugwininstallatie, Warmtepomp

Buitenruimte

Ligging
In woonwijk
Tuin
Achtertuin, Voortuin
Achtertuin
Noordoost, 171m², 1100×1550cm
Schuur
Vrijstaand hout
Faciliteiten schuur
Voorzien van elektra

Garage

Soort garage
Aangebouwd hout
Capaciteit
2

Locatie

[ { "address": "Blauwvlas 2", "zipCode": "4926 DS", "city": "Lage Zwaluwe", "lat": 51.7110545, "lng": 4.6925509, "heading": 0, "pitch": 0 } ]
[{"featureType":"water","elementType":"geometry","stylers":[{"color":"#e9e9e9"},{"lightness":17}]},{"featureType":"landscape","elementType":"geometry","stylers":[{"color":"#f5f5f5"},{"lightness":20}]},{"featureType":"road.highway","elementType":"geometry.fill","stylers":[{"color":"#ffffff"},{"lightness":17}]},{"featureType":"road.highway","elementType":"geometry.stroke","stylers":[{"color":"#ffffff"},{"lightness":29},{"weight":0.2}]},{"featureType":"road.arterial","elementType":"geometry","stylers":[{"color":"#ffffff"},{"lightness":18}]},{"featureType":"road.local","elementType":"geometry","stylers":[{"color":"#ffffff"},{"lightness":16}]},{"featureType":"poi","elementType":"geometry","stylers":[{"color":"#f5f5f5"},{"lightness":21}]},{"featureType":"poi.park","elementType":"geometry","stylers":[{"color":"#dedede"},{"lightness":21}]},{"elementType":"labels.text.stroke","stylers":[{"visibility":"on"},{"color":"#ffffff"},{"lightness":16}]},{"elementType":"labels.text.fill","stylers":[{"saturation":36},{"color":"#333333"},{"lightness":40}]},{"elementType":"labels.icon","stylers":[{"visibility":"off"}]},{"featureType":"transit","elementType":"geometry","stylers":[{"color":"#f2f2f2"},{"lightness":19}]},{"featureType":"administrative","elementType":"geometry.fill","stylers":[{"color":"#fefefe"},{"lightness":20}]},{"featureType":"administrative","elementType":"geometry.stroke","stylers":[{"color":"#fefefe"},{"lightness":17},{"weight":1.2}]}]

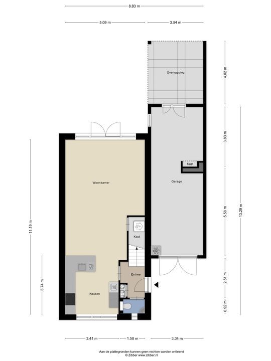
Plattegronden

Blauwvlas 2 Lage Zwaluwe

Contact opnemen
Interesse in deze woning? Vul onderstaande formulier in of bel 0162 - 67 24 24

Uw bericht is naar ons verzonden. Wij nemen zo snel mogelijk contact met u op.

Sorry, we kunnen helaas niet met zekerheid vaststellen of u een mens of een geautomatiseerde bot/spammer bent. Hierdoor kunnen we het formulier dat u heeft ingevuld niet verzenden. Probeer het opnieuw of neem direct contact op met de makelaar via e-mail.

Er is iets mis gegaan met het versturen van het formulier.
Controleer of u alle velden (goed) heeft ingevoerd en probeer het nog een keer.

recaptcha
reCAPTCHA
PrivacyTerms
van

Goedenavond 👋

Benieuwd naar de waarde van uw huis?

U weet het al binnen 1 minuut. Laten we beginnen!

Wat is de reden van uw aanvraag?
Ik wil graag...

Er zijn meerdere antwoorden mogelijk.

Wanneer wilt u verhuizen?

We zijn er bijna 🎉

Om het rapport op te maken hebben we een aantal gegevens nodig

recaptcha
reCAPTCHA
PrivacyTerms

Uw woningwaarde wordt berekend... 🚀

loading

Bedankt %name%! De woningwaarde van %address% is berekend 🥳

Check uw mail voor het rapport!

success
Wat is mijn huis waard?
Whatsapp Icon
Snel antwoord op je vraag?