We gebruiken cookies om de website naar behoren te laten werken, om functies voor social media te bieden en om onze website te analyseren. Op onze website kun je ook ons privacybeleid vinden.

De Biezen - fase 3 0 ong, Tussenwoning in Lage Zwaluwe - Biemans Made Makelaardij

De Biezen - fase 3 0 ong, Lage Zwaluwe

Omschrijving

Woningtype I

Fraaie levensloopbestendige tussenwoning

Bouwnummer 90

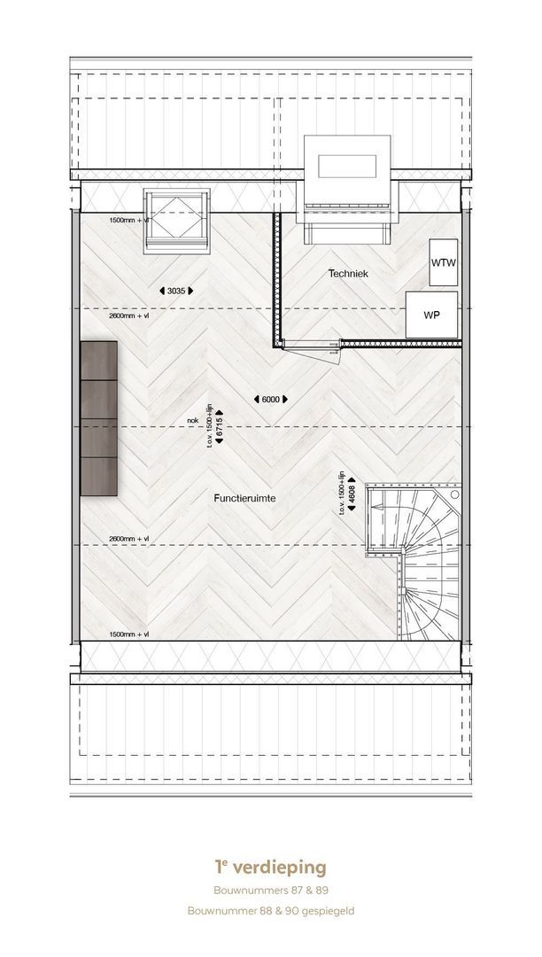
Deze levensloopbestendige woningen hebben een fraaie uitstraling door o.a. de toepassing van grote raampartijen, accenten in het metselwerk en een hoogwaardige gevelsteen. Met alle voorzieningen op de begane grond bent u gegarandeerd van optimaal wooncomfort en een toekomstbestendige woning.

Kenmerken
• Uitnodigende woonkamer met open keuken.
• Gelijkvloers wonen met de slaapkamer en badkamer op de begane grond.
• Badkamer aan de slaapkamer, uitgerust met een inloopdouche, wastafel en toilet.
• Fraai perceel met een achterom.
• Standaard voorzien van een houten buitenberging in de achtertuin.
• Parkeermogelijkheid voor de deur in het openbaar gebied.

Kenmerken

Overdracht

Prijs
€ 430.000 v.o.n.
Status
Verkocht onder voorbehoud
Oplevering
In overleg

Bouw

Soort woonhuis
Eengezinswoning, Tussenwoning
Soort bouw
Nieuwbouw
Bouwjaar
2026
Onderhoud binnen
Uitstekend
Onderhoud buiten
Uitstekend

Oppervlakten en inhoud

Woonoppervlakte
104m²
Perceeloppervlakte
154m²
Inhoud
312m³

Indeling

Aantal kamers
3
Aantal slaapkamers
1
Verdiepingen
2

Energie

Energielabel
A+++
Isolatie
Volledig geisoleerd
Verwarming
Vloerverwarming gedeeltelijk, Warmte Terugwininstallatie, Warmtepomp

Buitenruimte

Ligging
In bosrijke omgeving, In woonwijk
Tuin
Achtertuin, Voortuin, Zijtuin
Schuur
Vrijstaand hout
Faciliteiten schuur
Voorzien van elektra

Garage

Contact opnemen
Interesse in deze woning? Vul onderstaande formulier in of bel 0162 - 67 24 24

Uw bericht is naar ons verzonden. Wij nemen zo snel mogelijk contact met u op.

Sorry, we kunnen helaas niet met zekerheid vaststellen of u een mens of een geautomatiseerde bot/spammer bent. Hierdoor kunnen we het formulier dat u heeft ingevuld niet verzenden. Probeer het opnieuw of neem direct contact op met de makelaar via e-mail.

Er is iets mis gegaan met het versturen van het formulier.
Controleer of u alle velden (goed) heeft ingevoerd en probeer het nog een keer.

recaptcha
reCAPTCHA
PrivacyTerms
van

Goedenavond 👋

Benieuwd naar de waarde van uw huis?

U weet het al binnen 1 minuut. Laten we beginnen!

Wat is de reden van uw aanvraag?
Ik wil graag...

Er zijn meerdere antwoorden mogelijk.

Wanneer wilt u verhuizen?

We zijn er bijna 🎉

Om het rapport op te maken hebben we een aantal gegevens nodig

recaptcha
reCAPTCHA
PrivacyTerms

Uw woningwaarde wordt berekend... 🚀

loading

Bedankt %name%! De woningwaarde van %address% is berekend 🥳

Check uw mail voor het rapport!

success
Wat is mijn huis waard?
Whatsapp Icon
Snel antwoord op je vraag?