We gebruiken cookies om de website naar behoren te laten werken, om functies voor social media te bieden en om onze website te analyseren. Op onze website kun je ook ons privacybeleid vinden.

Kerkstraat 57, Vrijstaande woning in Lage Zwaluwe - Biemans Made Makelaardij

Kerkstraat 57, Lage Zwaluwe

Omschrijving

ALGEMEEN
Karaktervolle pastorie met uitzicht over de polder
Wonen in een voormalige pastorie met karakter, ruimte én een adembenemend uitzicht? Deze unieke gemeentelijk monumentale woning, gelegen aan het historische dorpslint van Lage Zwaluwe, combineert de charme van vroeger met het wooncomfort van nu. De ligging is ideaal: rust en ruimte in een vriendelijk dorp met basisschool, en toch uitstekende bereikbaarheid van steden als Rotterdam, Dordrecht en Breda. De Biesbosch ligt praktisch in de achtertuin – perfect voor wandelingen, fietstochten of een ontspannen vaartocht.

Een huis met ruimte, licht en karakter
Deze voormalige pastorie ademt warmte en historie. Hoge plafonds, originele details en grote raampartijen zorgen voor een licht en ruimtelijk gevoel in elke kamer. De woning is uitstekend onderhouden en met zorg verbouwd in 2003, waarbij stijl en comfort hand in hand zijn gegaan.
De woonkamer en suite met open haard biedt een intieme plek om te ontspannen, terwijl de eetkamer – met panoramisch uitzicht over de polder – uitnodigt tot lange diners. De ruime woonkeuken is het hart van het huis, perfect voor dagelijks gebruik én voor het ontvangen van gasten.
De kelder fungeert als praktische bergruimte, compleet met plek voor wijnopslag en extra koel-/vriesapparatuur. Ook de bijkeuken is netjes afgewerkt en volledig functioneel. Overal voel je: dit is een huis waar met liefde is gewoond – en dat direct woonklaar is.
En toch blijft er ruimte om het naar eigen hand te zetten. De zeer ruime zolder biedt volop mogelijkheden voor extra slaapkamers, een tweede badkamer, een atelier of zelfs een bed & breakfast. Wie droomt van wonen én werken onder één dak, vindt hier een unieke basis.

INDELING
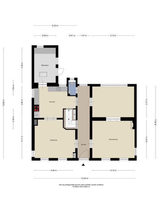
BEGANE GROND
Via de imposante hal met hoge plafonds bereik je rechts de sfeervolle woonkamer en suite met open haard. Aan de linkerzijde ligt de royale eetkamer, met een prachtig, weids uitzicht over de polder. Aangrenzend bevindt zich de ruime woonkeuken, compleet met 6-pits gasfornuis, oven, combimagnetron, vaatwasser en diverse inbouwapparatuur. De lichte, aangebouwde bijkeuken biedt plaats aan wasmachine en droger, keurig weggewerkt.
De praktische kelder is ook vanuit de keuken bereikbaar.

EERSTE VERDIEPING
De overloop biedt toegang tot vier ruime slaapkamers, waarvan twee met vaste kastruimte. De nette badkamer (2003) beschikt over een hoekbad, inloopdouche en dubbele wastafel.

TWEEDE VERDIEPING
De zeer royale zolder is bereikbaar via een vaste trap en biedt tal van mogelijkheden: extra slaapkamers, een tweede badkamer of een groot atelier. De cv-installatie is netjes weggewerkt, en er is veel bergruimte achter schuifdeuren.

TUIN EN BUITENRUIMTE
De diepe achtertuin is zongunstig gelegen op het zuidwesten en biedt volledige privacy. Volwassen groen zorgt voor sfeer, terwijl pop-up sproeiers het onderhoud vergemakkelijken. Er is voldoende ruimte voor zowel zon als schaduwplekken. Aan de zijkant van het huis bevindt zich een open berging voor fietsen en tuingereedschap. Er zijn voldoende parkeermogelijkheden voor meerdere auto’s direct achter het huis.

Kenmerken

Overdracht

Status
Beschikbaar
Prijs
€ 795.000 k.k.
Oplevering
In overleg

Bouw

Soort woonhuis
Herenhuis, Vrijstaande woning
Soort bouw
Bestaande bouw
Bouwjaar
1820
Onderhoud binnen
Goed
Onderhoud buiten
Goed
Bijzonderheden
Monumentaal pand

Oppervlakten en inhoud

Woonoppervlakte
310m²
Perceeloppervlakte
476m²
Overig oppervlakte
24m²
Inhoud
1.237m³

Indeling

Aantal kamers
9
Aantal slaapkamers
4
Aantal badkamers
1
Aantal verdiepingen
3

Energie

Isolatie
Dakisolatie, Gedeeltelijk dubbel glas, Voorzetramen
Warm water
C.V.-ketel
Verwarming
C.V.-ketel
Ketel
Combi (2003, Combi-ketel, Eigendom)

Buitenruimte

Ligging
Vrij uitzicht
Tuin
Achtertuin
Achtertuin
Zuidwest, 240m², 1200×2000cm

Garage

Locatie

[ { "address": "Kerkstraat 57", "zipCode": "4926 CV", "city": "Lage Zwaluwe", "lat": 51.7116203, "lng": 4.7013068, "heading": 0, "pitch": 0 } ]
[{"featureType":"water","elementType":"geometry","stylers":[{"color":"#e9e9e9"},{"lightness":17}]},{"featureType":"landscape","elementType":"geometry","stylers":[{"color":"#f5f5f5"},{"lightness":20}]},{"featureType":"road.highway","elementType":"geometry.fill","stylers":[{"color":"#ffffff"},{"lightness":17}]},{"featureType":"road.highway","elementType":"geometry.stroke","stylers":[{"color":"#ffffff"},{"lightness":29},{"weight":0.2}]},{"featureType":"road.arterial","elementType":"geometry","stylers":[{"color":"#ffffff"},{"lightness":18}]},{"featureType":"road.local","elementType":"geometry","stylers":[{"color":"#ffffff"},{"lightness":16}]},{"featureType":"poi","elementType":"geometry","stylers":[{"color":"#f5f5f5"},{"lightness":21}]},{"featureType":"poi.park","elementType":"geometry","stylers":[{"color":"#dedede"},{"lightness":21}]},{"elementType":"labels.text.stroke","stylers":[{"visibility":"on"},{"color":"#ffffff"},{"lightness":16}]},{"elementType":"labels.text.fill","stylers":[{"saturation":36},{"color":"#333333"},{"lightness":40}]},{"elementType":"labels.icon","stylers":[{"visibility":"off"}]},{"featureType":"transit","elementType":"geometry","stylers":[{"color":"#f2f2f2"},{"lightness":19}]},{"featureType":"administrative","elementType":"geometry.fill","stylers":[{"color":"#fefefe"},{"lightness":20}]},{"featureType":"administrative","elementType":"geometry.stroke","stylers":[{"color":"#fefefe"},{"lightness":17},{"weight":1.2}]}]

Plattegronden

Kerkstraat 57 Lage Zwaluwe

Contact opnemen
Interesse in deze woning? Vul onderstaande formulier in of bel 0162 - 67 24 24

Uw bericht is naar ons verzonden. Wij nemen zo snel mogelijk contact met u op.

Sorry, we kunnen helaas niet met zekerheid vaststellen of u een mens of een geautomatiseerde bot/spammer bent. Hierdoor kunnen we het formulier dat u heeft ingevuld niet verzenden. Probeer het opnieuw of neem direct contact op met de makelaar via e-mail.

Er is iets mis gegaan met het versturen van het formulier.
Controleer of u alle velden (goed) heeft ingevoerd en probeer het nog een keer.

recaptcha
reCAPTCHA
PrivacyTerms
van

Goedemorgen 👋

Benieuwd naar de waarde van uw huis?

U weet het al binnen 1 minuut. Laten we beginnen!

Wat is de reden van uw aanvraag?
Ik wil graag...

Er zijn meerdere antwoorden mogelijk.

Wanneer wilt u verhuizen?

We zijn er bijna 🎉

Om het rapport op te maken hebben we een aantal gegevens nodig

recaptcha
reCAPTCHA
PrivacyTerms

Uw woningwaarde wordt berekend... 🚀

loading

Bedankt %name%! De woningwaarde van %address% is berekend 🥳

Check uw mail voor het rapport!

success
Wat is mijn huis waard?
Whatsapp Icon
Snel antwoord op je vraag?